home
Quienes somos
Contacto
ES
/
EN
@
Edificios Utilitarios
Conjuntos Residenciales
Urbanismo y Paisaje
Casas
Interiores
Eventos Culturales
HOME
Edificios Utilitarios
Conjuntos Residenciales
Urbanismo y Paisaje
Casas
Interiores
Eventos Culturales
Complejo Teatral
Complejo Teatral
Complejo Teatral
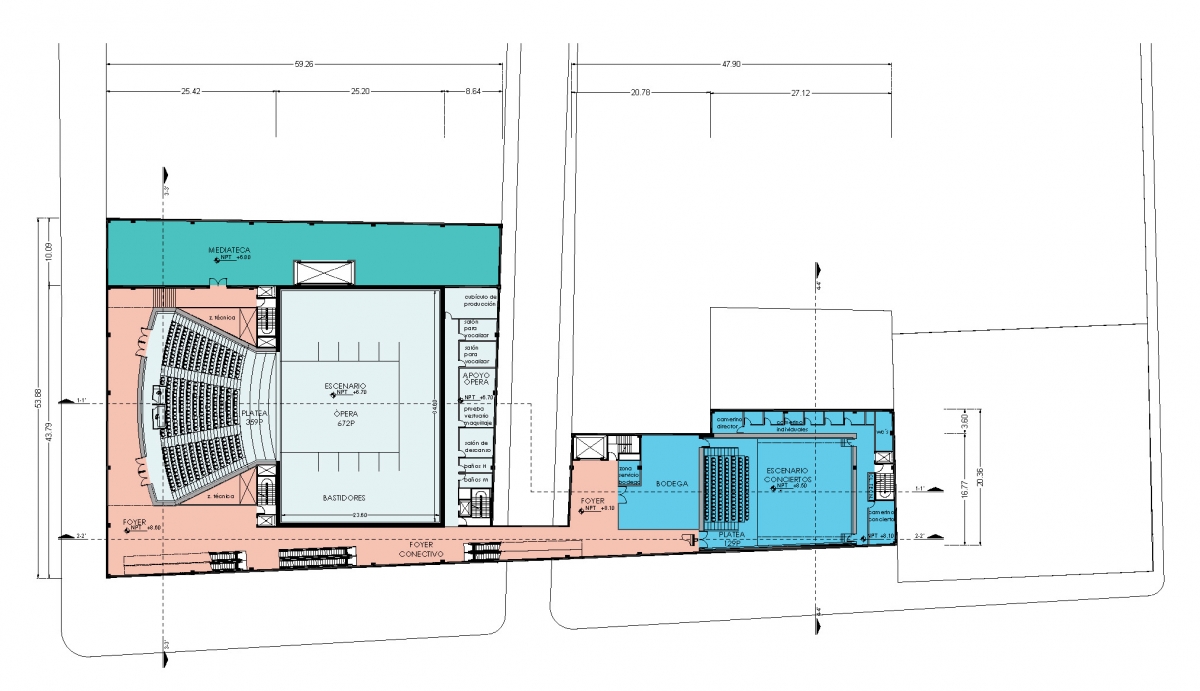
Estudio para un conjunto de teatros y espacios de ensayo para diversas disciplinas artísticas. Proyecto colaborativo con FREE.
Design year
2015