home
Quienes somos
Contacto
ES
/
EN
@
Edificios Utilitarios
Conjuntos Residenciales
Urbanismo y Paisaje
Casas
Interiores
Eventos Culturales
HOME
Edificios Utilitarios
Conjuntos Residenciales
Urbanismo y Paisaje
Casas
Interiores
Eventos Culturales
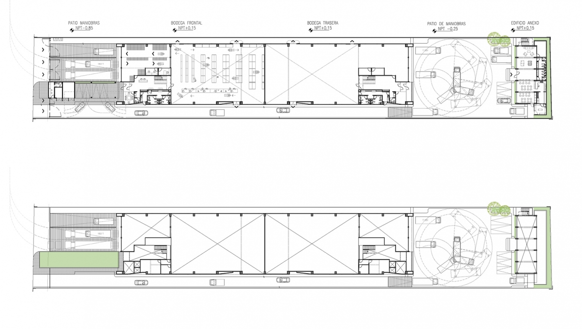
Bodega, Oficinas, Comedor
Bodega, Oficinas, Comedor
Mérida, Yucatán
Bodega, Oficinas, Comedor
Mérida, Yucatán
Anteproyecto Arquitectónico
Client
Privado
Design year
2023